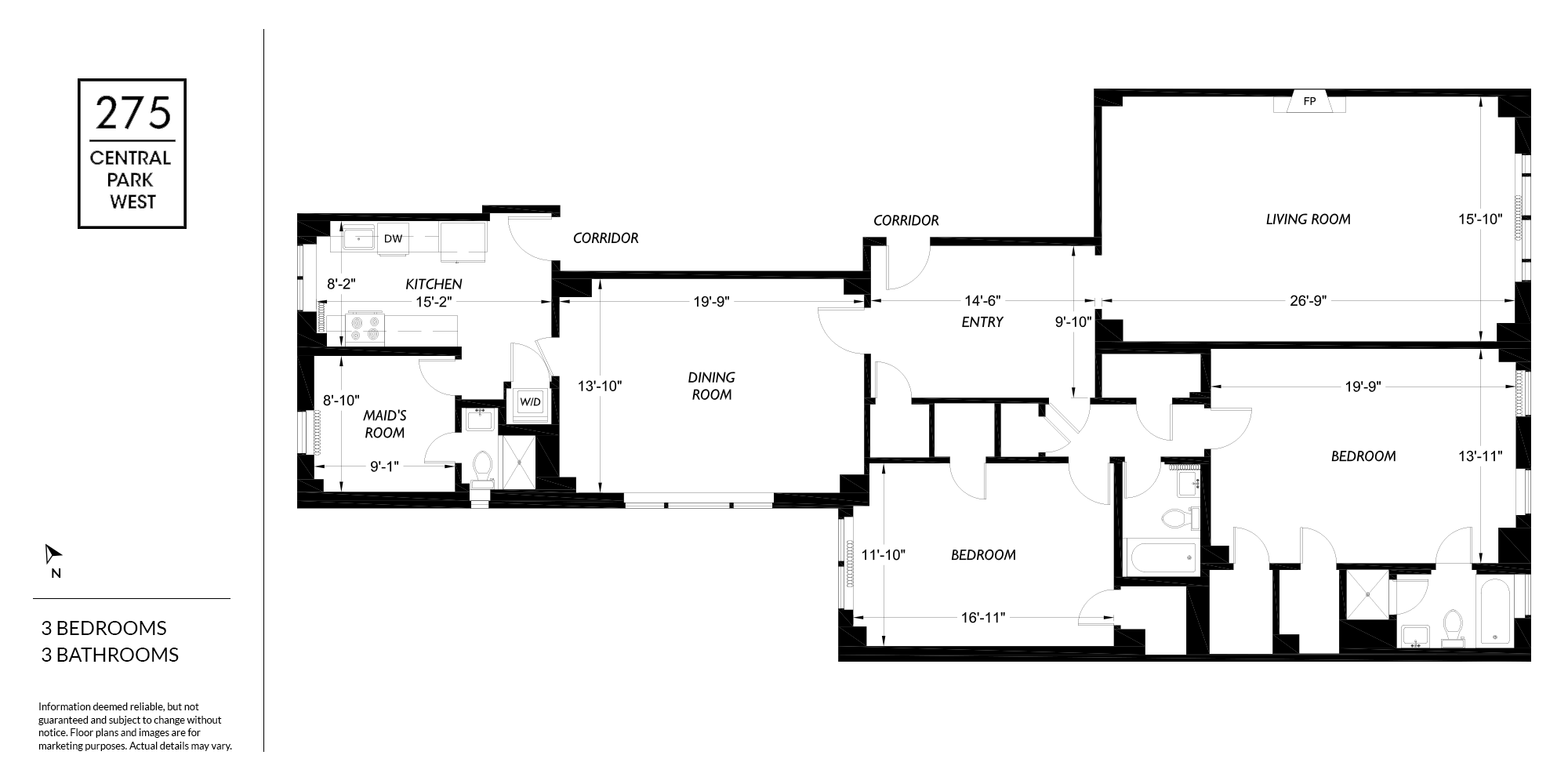
275 CPW – 3 Bedroom – 3 Bath